Transformation Gewerbe
Therese Fuchs und Emma Pauline Thies
Projektbeschreibung
Während des gesamten Entwurfsprozesses hat uns die Frage begleitet für welche Menschen und deren Bedürfnisse wir entwerfen. Durch verschiedene Wohnungstypen innnerhalb der Geschosse streben wir eine Vielfalt an BewohnerInnen an, die ein gemeinschaftliches Zusammenleben unterschiedlicher Altersgruppen, Lebensstile und Hintergründe ermöglicht.
Baukultur zu überdenken bedeutet herauszufinden, wie bestehende Strukturen transformiert werden können, welche Elemente des Gebäudes erhaltenswert sind und welche an anderer Stelle recycelt werden können.
Ein zentrales Ziel unseres Entwurfs ist es, dem Tragwerk der Halle weiterhin eine tragende Funktion zuzuweisen. Die neue Fassade setzt sich wie eine Hülle um den Bestand und lässt die historische Bedeutung des Ortes in den Innenräumen erlebbar werden.
Das frühere Verwaltungsgebäude soll durch minimalinvasive Eingriffe umgenutzt werden. Die Fassadenelemente aus Beton der großen Bestandshalle werden in der Fassade des Erdgeschoss wiederverwendet, sowie sich die schmalen Fassadenelemente der kleinen Halle als Bodenbelag in der Umgebung vor dem Gebäude abzeichnen.
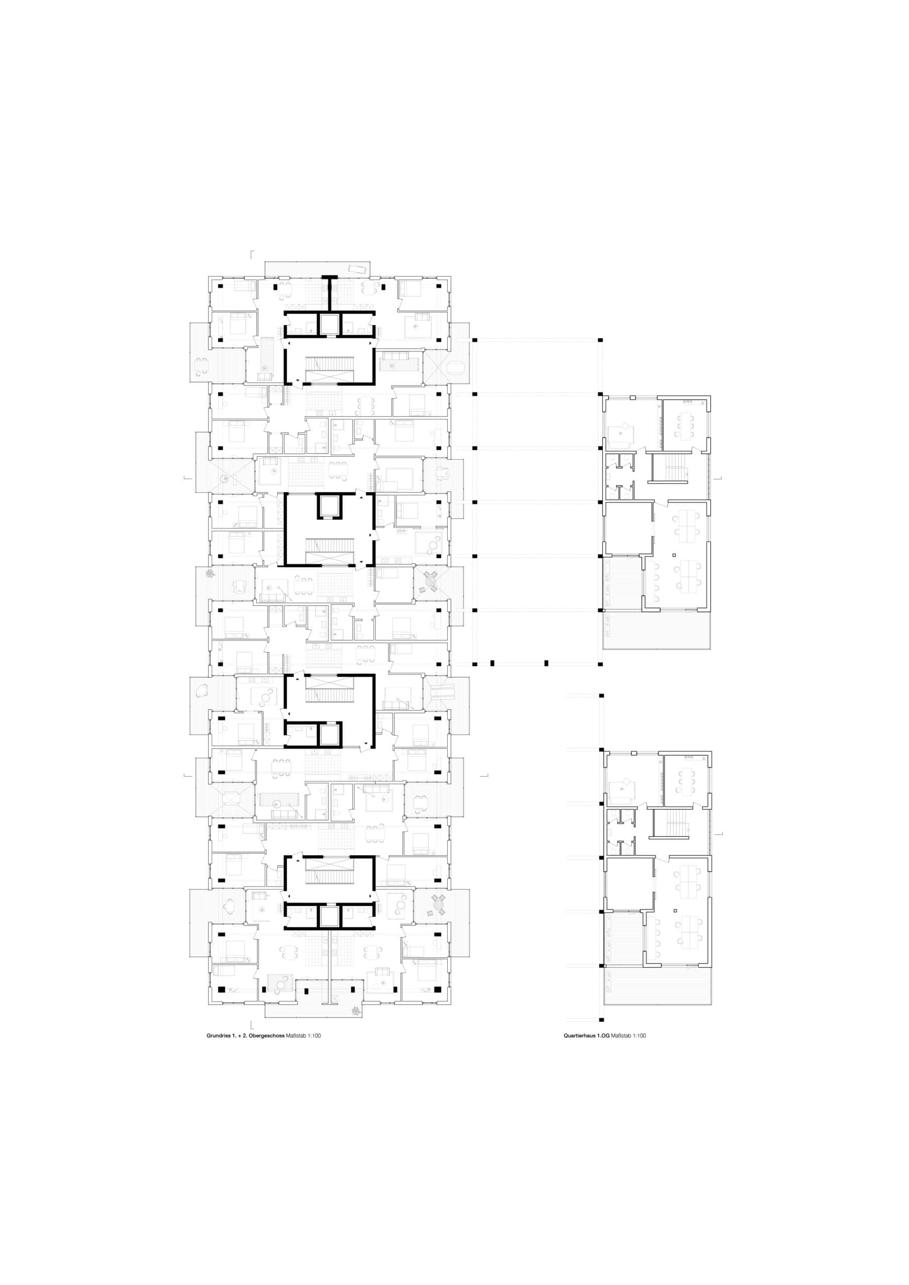
Durch die intensive Auseinandersetzung mit der bestehenden Tragstruktur, haben wir uns bei der städtebaulichen Setzung auf die Transformation der bestehenden Strukturen fokussiert mit der Intention ein erstes Zeichen bei der Weiterentwicklung des Areals zu setzen. Das geplante Gebäude umfasst vier Geschosse, von denen sich drei innerhalb der bestehenden Tragstruktur befinden. Das aufgestockte Dachgeschoss bricht durch die besondere Form das Erscheinungsbild des Riegels. Die geplante Holzfassade bildet einen Kontrast zu dem industriellen Charakters des Areals.
Der Außenraum gliedert sich in eine ruhige, private Gartenseite im Westen und eine belebte, halböffentliche bis öffentliche Seite im Osten des Gebäudes. Das Grundstück wird mit Blick auf das öffentliche Café und dem Hofladen erschlossen. Im Erdgeschoss befinden sich Ateliers, die zumietbar oder durch eine Wohnung zur Gartenseite erweitert sind. Die Ateliers bilden sich in der Fassade durch Glaskörper ab, welche aus der Gebäudestruktur hervortreten und den Außenraum einbeziehen.
Der leicht begrünte Vorplatz fungiert als Begegnungsort für BewohnerInnen und BesucherInnen. Er verbindet das Wohngebäude mit dem Quartierhaus, welches durch die Umnutzung des bestehenden Verwaltungsgebäudes entstanden ist. Im Quartierhaus sind eine Kita und Räumlichkeiten für Co-working geplant. Das bestehende Gebäude wird im südlichen Teil durch einen Anbau aus Glas ergänzt, mit der Intention die Fläche der entstehenden Kita zu ergänzen und eine offene, naturnahe Atmosphäre zu schaffen.
Die Grundrissstruktur des Erdgeschosses wird in den ersten beiden Obergeschossen weitergeführt. Charakteristisch sind hier die Einrückungen in Form von Loggien, die immer zwei, teilweise auch drei bis vier Wohnungen miteinander verbinden. Durch diese Anordnung gelangt einerseits mehr Licht in den tiefen Grundriss, anderseits werden eine lebendige Nachbarschaft und die Offenheit innerhalb des Gebäudes gefördert.
Das Dachgeschoss setzt sich wie eine leichte Krone auf das Tragwerk und schafft eine neue Kommunikationsebene in Form einer für die BewohnerInnen öffentliche Dachterrasse, wo Feierlichkeiten stattfinden können.
Neben der gestalterischen Aufgabe des Tragwerks aus Stahlbeton im Innenraum sowie Außenraum erfahrbar gemacht zu werden, übt es primär eine tragende Funktion aus.
Zusätzlich ausgesteift wird es durch die vier Treppenhauskerne aus Stahlbeton. Die eingesetzte Holzkonstruktion in den Decken und Wänden bildet die Sekundärstruktur und verbindet den Bestand mit dem Neubau und soll eine warme Raumatmosphäre im Kontrast zu den Betonelementen vermitteln.
Das Bauen im Bestand und die nachhaltige Verwendung von Materialien lag uns bei diesem Projekt von Anfang an sehr am Herzen. In Zukunft müssen auch wir als ArchitektInnen verschiedene Lösungen und Ideen finden, wie wir mit leerstehenden Bestandsstrukturen umgehen. Mit unserem Projekt wollen wir einen ersten Impuls setzen.










